浮球閥減壓閥緩閉止回閥泄壓閥氣動球閥電動球閥不銹鋼球閥氣動蝶閥電動蝶閥法蘭蝶閥對夾式蝶閥襯氟蝶閥不銹鋼閘閥倒流防止器電動調節閥氣動調節閥自力式調節閥截止閥止回閥過濾器排氣閥排泥閥
三片式法蘭球閥|不銹鋼球閥|法蘭球閥產品資料介紹 三片式法蘭球閥|不銹鋼球閥|法蘭球閥型號規格
三片式法蘭球閥|不銹鋼球閥|法蘭球閥
三片式法蘭球閥
三片式法蘭球閥

三片式法蘭球閥Q41F

品牌廠家:COLAVAL/可拉伐
產品型號:Q41F
連接方式:法蘭
公稱通徑:DN15-DN100
閥體材質:不銹鋼304、不銹鋼316、不銹鋼316L
壓力溫度:PN16-25 低溫、常溫、高溫
結構形式:直通式
應用領域:法蘭球閥 304不銹鋼蒸汽高溫油防爆切斷閥316L 硬密封耐磨球閥 調節型閥門氣動電動
在線詢價

服務熱線:021-8037092318701880159

產品優點
  • 特點

    單閥座設計。消除了閥門中腔介質因異常升壓而影響使用安全的問題。

  • 輕松啟閉

    低扭矩設計。特殊結構設計的閥桿,只需配一個小手把閥門就能輕松啟閉。

  • 可選裝

    可選裝配電動/氣動執行器可變成電動/氣動開關閥或電動/氣動切斷閥。

  • 體積小

    結構簡單、體積小、重量輕。

  • 維修方便

    維修方便,球閥結構簡單,密封圈一般都是活動的,拆卸更換都比較方便。

  • 專業選型

    根據用戶提供的流量、壓力提供選型規格書及控制方案圖。

產品詳情

三片式法蘭球閥產品簡介:

三片式法蘭球閥閥座采用彈性密封結構,密封可靠,啟閉輕松。閥桿采用有倒密封的下裝式結構,閥腔異常升壓時,閥桿不會被沖出。閥體鑄造采用工藝,結構合理、造型美觀。驅動方式:手動、電動、氣動。可設置90°開關定位機構,根據需要加鎖以防止誤操作。

三片式法蘭球閥工作原理:

三片式法蘭球閥是用帶有圓形通道的球體作啟閉件,球體隨閥桿轉動實現啟閉動作的閥門。球閥的啟閉件是一個有孔的球體,繞垂直于通道的軸線旋轉,從而達到啟閉通道的目的。球閥主要用于截斷或接通管道和設備介質,也可用于流體的調節與控制,球閥流體阻力小,結構簡單,體積小,重量輕,緊密可靠,操作維修方便,不會引起閥門密封面的侵蝕,適用范圍廣。

三片式法蘭球閥產品特點:

1、 單閥座設計。消除了閥門中腔介質因異常升壓而影響使用安全的問題。

2、 低扭矩設計。特殊結構設計的閥桿,只需配一個小手把閥門就能輕松啟閉。

3、 啟閉無摩擦。這一功能完全解決了傳統閥門因密封面之間相互摩擦而影響密封的問題。

4、 三片式結構。對裝在管道上的閥門可直接在線檢查與維修,能有效減少裝置停車,降低成本。

5、 楔形密封結構。閥門是靠閥桿提供的機械力,將球楔壓到閥座上而密封,使閥門的密封性不受管線壓差變化的影響,在各種工況下密封性能都有可靠保證。

6、 密封面的自清潔結構。當球體傾離閥座時,管線中的流體沿球體密封面成360°均勻通過,不僅消除了高速流體對閥座局部的沖刷,也沖走了密封面上的聚積物,達到自清潔的目的。

 

三片式法蘭球閥概述:

三片式法蘭球閥結構,對裝在管道上的閥門可直接在線檢查與維修,能有效減少裝置停車,降低成本; 三片式球閥楔形密封結構,閥門是靠閥桿提供的機械力,將球楔壓到閥座上而密封,使閥門的密封性不受管線壓差變化的影響,在各種工況下密封性能都有可靠保證。 三片式法蘭球閥單閥座設計,消除了閥門中腔介質因異常升壓而影響使用安全的問題;三片式美標球閥低扭矩設計,特殊結構設計的閥桿,只需配一個小手把閥門就能輕松啟閉;啟閉無摩擦,這一功能完全解決了傳統閥門因密封面之間相互摩擦而影響密封的問題。

 

三片式法蘭球閥設計標準:

APPLECABLE STANDARDS:

防爆中軸/全流Blow-out Proof stem/Full port

設計和制造標準按照Design: ASME B16.34,API608;

結構長度按照face toface : ASME B16.10;

法蘭端尺寸按照End Flange:ASME B16.5;

檢驗和測試按照Test: API598;

防火設計測試Fire Safe:API607;

 

三片式法蘭球閥產品特性:

閥桿帶有防靜電設置

閥桿防脫出裝置設計

鋼球球槽上有泄壓孔

采用脫臘精密鑄造

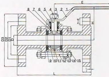
三片式法蘭球閥主要材料表:

零件名稱PART NAME材質MATERIAL
閥體BODYSS304/SS316
球體 BALLSS304/SS316
螺母GLAND NUTSS304/SS316
螺栓BOLTSS304/3SS16
密封線JOINT GASKETPTFE
密封圈JOINT RINGPTFE
止推墊STOP RINGPTFE
閥桿STEMSS304/SS316
填料STEM PACKINGPTFE
定位片STOP304/SS316
鎖片 LOCKPADSS304
壓蓋GLANDCF8/CF8M
卡簧SNAP RING3SS04/SS316
手柄HANDLECF8/CF8M
壓蓋螺栓GLAND BOLTSS304/SS316

三片式法蘭球閥尺寸圖: 

1-200H3133QE63.jpg

三片式法蘭球閥外形尺寸表:

SiteLdCRDHETf
1/2"1081535609076.5120112
3/4"11720437010079120112
1"12725517911091.5150122
1-1/4"14032648911596.5150132
1-1/2"165407398125104170142
2"1785092121150117170162
2-1/2"19065105140180140250182
3"20380127152190142250192
4"229100157191230163.5300242

三片式法蘭球閥產品應用:

三片式法蘭球閥的主要特點是本身結構緊湊,易于操作和維修,三片式法蘭球閥適用于水、溶劑、酸和天然氣等一般工作介質,而且還適用于工作條件惡劣的介質,如氧氣過氧化氫,甲烷和乙烯等。要求嚴格切斷的工況。

關鍵字: 球閥
021-80370923
18701880159
在線客服
加微信聊
返回頂部

添加微信,享下單優惠!

18701880159 18701880159

(長按復制微信號,添加好友)

電話咨詢 微信咨詢