浮球閥減壓閥緩閉止回閥泄壓閥氣動球閥電動球閥不銹鋼球閥氣動蝶閥電動蝶閥法蘭蝶閥對夾式蝶閥襯氟蝶閥不銹鋼閘閥倒流防止器電動調節閥氣動調節閥自力式調節閥截止閥止回閥過濾器排氣閥排泥閥
手柄法蘭蝶閥|手動法蘭蝶閥D41X|法蘭蝶閥產品資料介紹 手柄法蘭蝶閥|手動法蘭蝶閥D41X|法蘭蝶閥型號規格
手柄法蘭蝶閥|手動法蘭蝶閥D41X|法蘭蝶閥
手柄法蘭蝶閥
手柄法蘭蝶閥
手柄法蘭蝶閥
手柄法蘭蝶閥
手柄法蘭蝶閥
手柄法蘭蝶閥

手柄法蘭蝶閥

品牌廠家:COLAVAL/可拉伐
產品型號:D41X
連接方式:法蘭
公稱通徑:DN50-DN200
閥體材質:球墨鑄鐵、不銹鋼304、不銹鋼316、不銹鋼316L
壓力溫度:PN10-PN16 0~80℃
結構形式:中線型
應用領域:法蘭蝶閥D41X-16Q通風水閥對夾不銹鋼220V開關調節蝶閥
在線詢價

服務熱線:021-8037092318701880159

產品優點
  • 特點

    結構簡單,力矩小,操作方便、迅速

  • 操作簡單

    手動蝶閥啟閉方便迅速、省力、流體阻力小,可以經常操作。

  • 密封性好

    采用中線型結構,具有越關越緊的密封功能,密封性能可靠。

  • 體積小

    體積小、重量輕、安裝尺寸小、開關迅速

  • 使用時間長

    密封副材料選用球墨鑄鐵和丁腈耐油橡膠配對,使用時間長

  • 可適用多種介質

    整體烤漆,能有效防止銹蝕且只要更換密封閥座密封材料,就可使用于不同介質。

產品詳情

手柄法蘭蝶閥D41X原理作用:      

手柄法蘭蝶閥的啟閉件是一個圓盤形的蝶板,在閥體內繞其自身的軸線旋轉,從而達到啟閉或調節的目的。蝶閥的優點有結構簡單、體積小、重量輕、安裝尺寸小、開關迅速。

D41X/D41F型法蘭蝶閥系列采用中線垂直板、軟密封閥座結構,結構簡單,制造方便,價格便宜;手動蝶閥是手柄驅動適用于適用于公稱壓力≤1.6MPa,公稱通徑小于DN200的各種水、油、氣等介質的管道上。 

手柄法蘭蝶閥D41X性能特點:  

①結構簡單,力矩小,操作方便、迅速;

②具有良好的流量調節功能和密封性能,氣壓測試泄露為零;

③合成橡膠閥座具有耐腐蝕、耐沖蝕、尺寸穩定、回彈性好;

④可裝配電動執行器、氣動執行器,實現遠程大規模集中控制。

    手柄法蘭蝶閥D41X技術參數:
    公稱通徑DN50~DN200適用溫度0℃~80℃
    公稱壓力PN1.0/PN1.6適用介質水、氣、油
    手柄法蘭蝶閥D41X部件材質:
    零件名稱材料
    閥體球墨鑄鐵、鑄鋼、合金鋼、不銹鋼
    蝶板鑄鋼、不銹鋼及特殊材料
    密封圈各種橡膠、聚四氟
    閥桿2Cr13、不銹鋼
    填料O型圈、柔性石墨
    手柄法蘭蝶閥D41X外形尺寸:
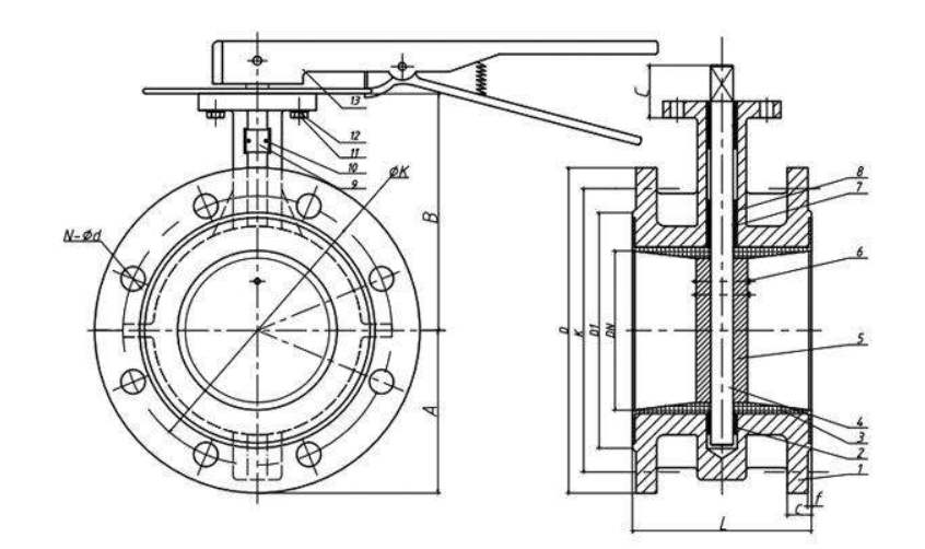
    D41X法蘭蝶閥結構圖
    DNLHH0ABDD1D2n-d重量KG
    5010863306180200165125994-1813
    65112703211802001851451184-1814
    80114833461802002001601328-1815.5
    1001271053871802002201801568-1819.5
    1251401154111802002502101848-1825.5
    1501401374472702802852402118-2228.5
    20015216457227028034029526612-2248


關鍵字: 手柄法蘭蝶閥
021-80370923
18701880159
在線客服
加微信聊
返回頂部

添加微信,享下單優惠!

18701880159 18701880159

(長按復制微信號,添加好友)

電話咨詢 微信咨詢